Download Free Templates http://bigtheme.net/ Websites Templates

Prosjekt for et enetasjes hus Agnete.

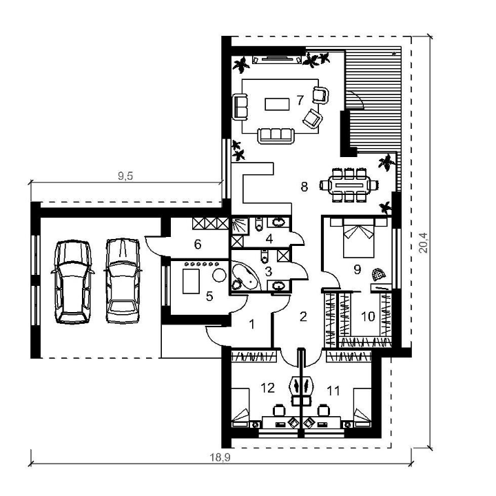
Totalt boareal 141 m2
Lengde 20,4 m
Bredde 18,9 m
Antall rom 4
Garasje Ja

 

BEGYNNE SAMTALE

Please type your full name.
Invalid email address.
Invalid Input
Invalid Input
Ugyldig inndata

Ønsker du mer detaljert informasjon? Du kan kontakte oss på telefon:

+371-670-16-500

Du kan levere din bestilling til våre ingeniører med tekniske parametrer for husbugging eller sende inn skissetegning til vår E-postadresse: info@grata-eco-house.com, og ifølge disse opplysningene vil vi opprette foreløpig kostnadoverslag.